Rif: V112
SANT'AGATA BOLOGNESE
BOLOGNA
GABETTI San Giovanni in Persiceto propone in esclusiva, in una posizione comoda a tutti i servizi a Sant'Agata Bolognese, villa con ingresso indipendente e giardino privato, perfetta per chi desidera spazi per momenti di svago all'aperto.
L'abitazione si estende su una superficie di circa 110 mq, con interni che si distinguono per arredi di qualità e finiture curate, e si sviluppa su tre livelli:
PIANO TERRA
- soggiorno con angolo cottura, con accesso diretto al portico e al giardino
- bagno
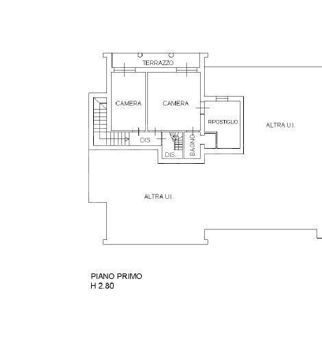
PIANO PRIMO
- due camere da letto, che si affacciano entrambe sul terrazzo
- bagno
- ripostiglio
PIANO SECONDO
- ampio soppalco, ideale come studio o come terza camera
L'assenza di spese condominiali, il riscaldamento autonomo e l'aria condizionata garantiscono una gestione efficiente e indipendente della casa. Completano la proprietà un box auto e un posto auto scoperto, che aggiungono ulteriore comodità a questa soluzione abitativa. Consegna prevista per marzo 2027.
Classe energetica E. Rif. V112. Euro 228.000.
L'abitazione si estende su una superficie di circa 110 mq, con interni che si distinguono per arredi di qualità e finiture curate, e si sviluppa su tre livelli:
PIANO TERRA
- soggiorno con angolo cottura, con accesso diretto al portico e al giardino
- bagno
PIANO PRIMO
- due camere da letto, che si affacciano entrambe sul terrazzo
- bagno
- ripostiglio
PIANO SECONDO
- ampio soppalco, ideale come studio o come terza camera
L'assenza di spese condominiali, il riscaldamento autonomo e l'aria condizionata garantiscono una gestione efficiente e indipendente della casa. Completano la proprietà un box auto e un posto auto scoperto, che aggiungono ulteriore comodità a questa soluzione abitativa. Consegna prevista per marzo 2027.
Classe energetica E. Rif. V112. Euro 228.000.
Consistenze
| Descrizione | Superficie | Sup. comm. |
|---|---|---|
| Principali | ||
| Immobile - piano rialzato | 110 Mq | 110 Mqc |
| Totale | 110 Mqc | |
